Opis proizvoda
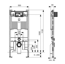
Modul za WC uključuje "jednostavnu ugradnju" montažne ploče za ispiranje. Namijenjen je montaži na TECEprofilne cijevi ili za ugradnju u metalne ili drvene okvirne zidove te kao predzidni ili kutni modul; također pogodan za jednostruk sastav.
Octa II spremnik 8 cm, za aktiviranje sprijeda
- Sigurnosni spremnik izrađen od udarootpornog plastike, testiran prema EN 14055
- Spremnik potpuno montiran i zapečaćen
- Spoj spremnika s vanjskim navojem R 1/2" na vrhu, kompatibilan s brzim adapterima
- Zapremina spremnika 7 litara; standardni volumen ispiranja od 6 litara unaprijed postavljen, volumen ispiranja od 4,5 litara može se postaviti u bilo
- koje vrijeme; volumen djelomičnog ispiranja od 3 litre za sustav dvostrukog ispiranja; opcionalno je moguće postavljanje volumena ispiranja od 4/2 litre.
- Izoliran protiv kondenzacijske vode
- Za TECE montažne ploče za ispiranje i ručke za ispiranje WC-a
- Može se koristiti kao jednostruk ili dvostruk spremnik za ispiranje
- "Jednostavna ugradnja" montažne ploče za ispiranje
- Tunel za instalaciju servisnog otvora, može se skratiti bez alata
- Hidraulični ventil za tiho punjenje, skupina 1 prema DIN 4109
Okvir modula
- Samonosivi, premazani praškom
- Dva M 12 vijka za zadržavanje i matice
- Savijanje odvodnog WC-a DN 90 s adapterom za spoj DN 90/100, izrađeno od PP, uključujući zaštitni čep
- Adapter za spoj također pogodan za horizontalnu instalaciju
- Set za priključak WC-a DN 90
- Pogodno za izbočine poda do 30 cm
- Razmak za instalaciju keramike 180 mm ili 230 mm
- Pričvršćivanje na zid
- Set za izolaciju zvuka WC-a
Tehnički listovi
Upute za montažu
Preuzmi
Povezani proizvodi
Tece
Vodokotlić ugradbeni 320 mm sa tipkom
Tece
Tece base modul 2.0 s tipkom Tece now bijela
Tece
Vodokotlić ugradni TECEPROFIL H=112 cm univerzalni suha ugradnja UNI 2.0
Tece
Vodokotlić ugradni TECEBASE H=112cm s crnom mat dvokoličinskom tipkom i montažnim setom
Tece
Vodokotlić ugradni 320 mm TECEBASE H=112cm
Ideal Standard
Vodokotlić ugradni ProSys 150 82 cm Ideal Standard
Ideal Standard
Vodokotlić ugradni ProSys 80 6/3 L, Ideal Standard (samo za mehaničke potisne ploče)
Tece
Vodokotlić ugradni TECE profil UNI 2.0 H=82 CM suha ugradnja
Viega
Vodokotlić ugradni PREVISTA DRY VIEGA
Ideal Standard
Vodokotlić ugradni Ideal Standard s tipkom
Geberit
Vodokotlić ugradbeni DUOFIX BASIC UP100 sa tipkom DELTA 20 bijela i priborom
Tece
Vodokotlić ugradni TECEBASE H=112cm s bijelom dvokoličinskom tipkom
Tece
Vodokotlić ugradni TECEPROFIL suha ugradnja H=112cm sa zvučnom izolacijom i i montažnim setom
Tece
Vodokotlić ugradni TECEBASE H=112 cm s dvokoličinskom tipkom TECE NOW KROM/SJAJ
Tece
Vodokotlić ugradni TECEBASE H=112 cm univerzalni suha ugradnja s montažnim setom
